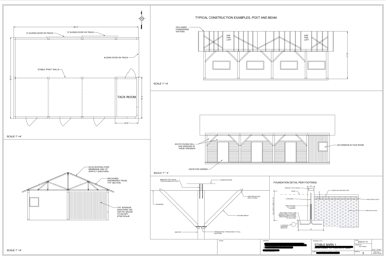
Construction plans

From floor plans, elevations, sections and details, I can provide drawings to homeowners and builders, for whatever your construction or fabrication project is.

Take-off sheets and material schedules

Added to any project to keep track of windows, doors, and materials needed like general lumber, posts, beams and sheet goods, along with square footage calculation and cut lists.

Below are examples of some recent construction plans I created for various building projects.

Drawings are available in sheet sizes of all types, full size 24 x 36, (Arch D), I have printed 1:1 scale blueprints for stair stringers 16’ long, or 8.5 x 11 to be printed at home for consideration.

Previous
Previous

Decks + Additions

Next
Next

3D Modeling + Concept Drawings